
Ultimo Apartment
Residential
Location
Ultimo NSW
Date
2023
Pre-design condition
Existing heritage commercial building renovation into multi-storey residential apartments
Project description
Renovate a former commercial building into residential apartments, utilising existing dimensions
Prepare comprehensive documentation plans for one unit within the complex
Incorporate FF&E selections and layout requirements based on client specifications.
Software
Revit
Concept and Features:
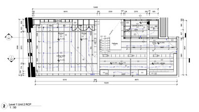
The Ultimo Apartment project aimed to implement construction standards and systems suitable for multi-storey residential environments and to effectively communicate design solutions to stakeholders through a detailed set of documentation. This involved preparing comprehensive plans, sections, elevations, and isometric drawings for a two-storey apartment within the renovated residential complex.
A critical aspect of this project was the incorporation of a schedule of specific finishes, furnishings, and equipment provided by the client. These elements were not merely added but were creatively integrated into the overall design to enhance the living experience. Each piece was meticulously tagged throughout the documentation to ensure precise placement and accuracy, which was crucial for maintaining the design integrity and meeting the client's expectations.
The design of the Ultimo Apartment features a harmonious blend of industrial and eclectic elements, both in finishes and furniture. This fusion reflects the clients' unique personalities and preferences, creating a space that is both stylish and personal. Exposed brick walls, metal fixtures, and reclaimed wood are combined with vibrant colours, eclectic decor, and modern furniture, resulting in a distinctive aesthetic that is both contemporary and timeless.
An open-plan layout was essential to the design, maximizing the flow of natural light from the limited exterior windows throughout the space. This not only enhances the functionality and aesthetic appeal of the apartment but also creates a sense of openness and connectivity. Strategic placement of mirrors and glass partitions further amplifies the light and space, ensuring every corner of the apartment feels bright and airy.
Download full documentation set:
Design Process





Documentation




Project Gallery














